Rif: IMMO-115722175
POZZUOLI
NAPOLI
VIA SOLFATARA, a pochi passi dalla stazione della metropolitana e dalle scuole, in un signorile condominio, proponiamo in locazione a referenziati - ad uso abitazione - un appartamento in buono stato di manutenzione con gradevole esposizione e posto auto condominiale assegnato.
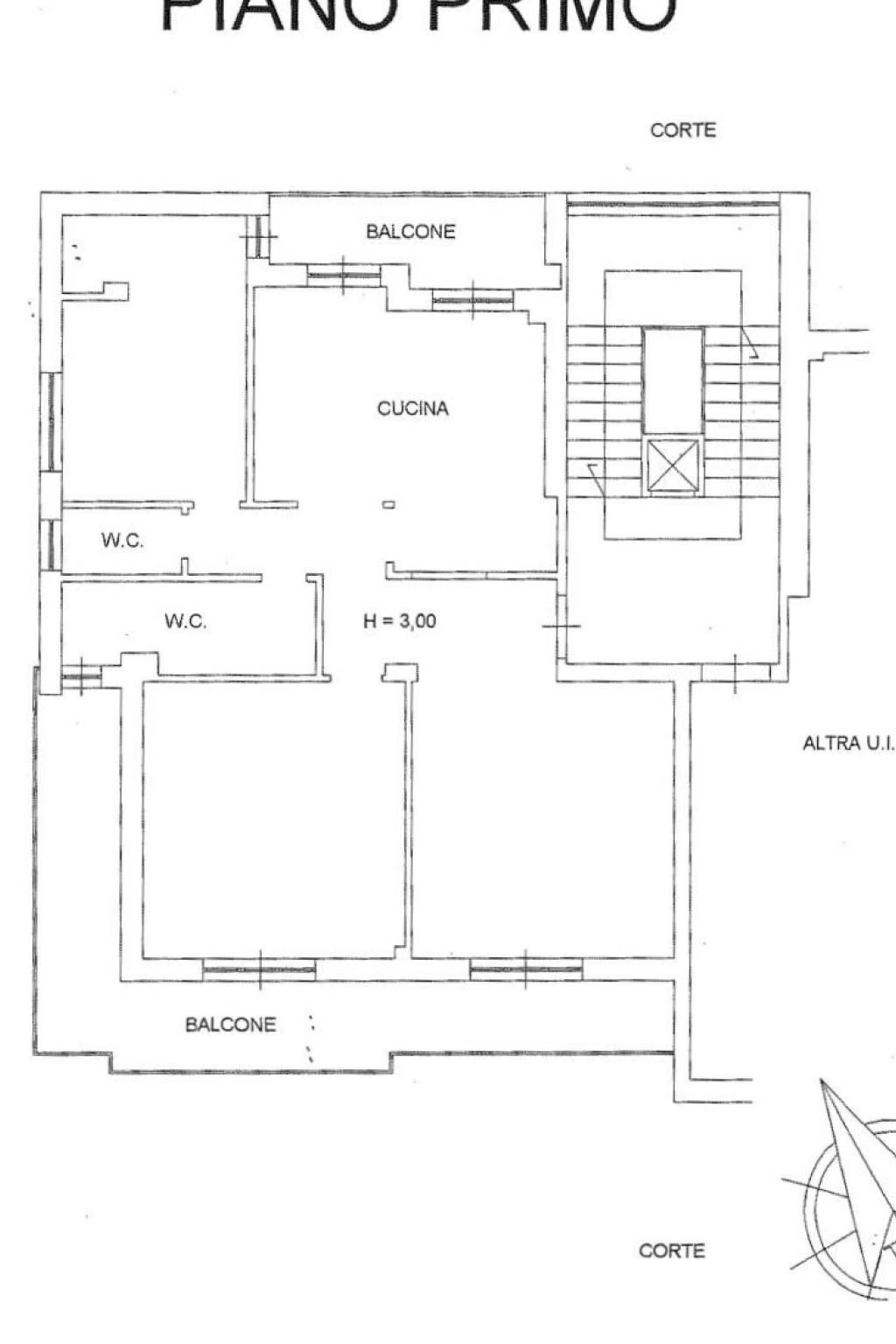
L'appartamento è ubicato al piano primo di uno stabile in cemento armato dotato di ascensore ed ha una quadratura interna di 95 mq circa (superficie catastale 111 mq).
L'immobile è composto da un ingresso, un salone, due camere da letto, una cucina-soggiorno, due servizi e due ampie balconate. L'immobile è dotato di riscaldamento autonomo. Posto auto condominiale assegnato. Eu. 980,00 mensili.
Lisard Immobiliare Napoli S. r. l.
Via S. Pasquale a Chiaia, 55
80121 - Napoli
Tel. 081.411814 pbx - 081.418902
www.lisardimmobiliare.it
Se volete essere aggiornati sulle nuove nostre proposte immobiliari nonchè sulle normative, sui trend e curiosità del settore immobiliare, follow us: Fb: https://www.facebook.com/lisardimmobiliarenapoli/ Ig: https://www.instagram.com/lisardimmobiliarenapoli/
L'appartamento è ubicato al piano primo di uno stabile in cemento armato dotato di ascensore ed ha una quadratura interna di 95 mq circa (superficie catastale 111 mq).
L'immobile è composto da un ingresso, un salone, due camere da letto, una cucina-soggiorno, due servizi e due ampie balconate. L'immobile è dotato di riscaldamento autonomo. Posto auto condominiale assegnato. Eu. 980,00 mensili.
Lisard Immobiliare Napoli S. r. l.
Via S. Pasquale a Chiaia, 55
80121 - Napoli
Tel. 081.411814 pbx - 081.418902
www.lisardimmobiliare.it
Se volete essere aggiornati sulle nuove nostre proposte immobiliari nonchè sulle normative, sui trend e curiosità del settore immobiliare, follow us: Fb: https://www.facebook.com/lisardimmobiliarenapoli/ Ig: https://www.instagram.com/lisardimmobiliarenapoli/
Consistenze
| Descrizione | Superficie | Sup. comm. |
|---|---|---|
| Principali | ||
| Immobile - 1° piano | 95 Mq | 95 Mqc |
| Terrazza - 1° piano | 32 Mq | 8 Mqc |
| Totale | 103 Mqc | |
